Web Analytics
39+ Change Of Ownership Form Images

39+ Change Of Ownership Form Images

They should be filled and submitted to the dvla offices for the change of ownership process to commence.

39+ Change Of Ownership Form Images. Use this free change of ownership form template. • then click add collaborators.

Change In Ownership Statement Death Of Real Property Owner Ccsf Office Of Assessor Recorder
Change In Ownership Statement Death Of Real Property Owner Ccsf Office Of Assessor Recorder from www.sfassessor.org
If you change the owner name that appears in any trademark electronic application system (teas) form without explaining why or recording an assignment, if required, you may receive an to correct the owner name but not ownership, due to a minor error. The process can take up to 15 days. Releasor and acceptor each have 5 days to complete the online form.

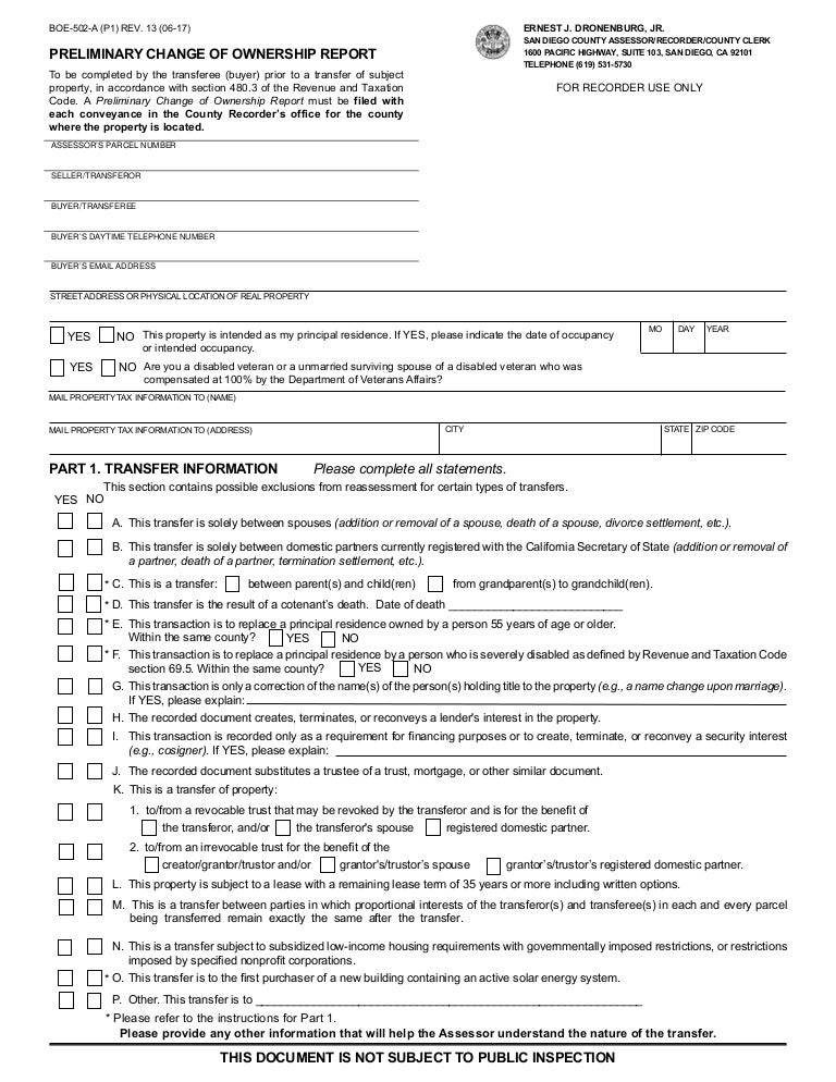
Owners of any property that has had changed in ownership (except by death of an owner) must file a preliminary change in ownership report in those cases where no deed is recorded, california law requires property owners to file a change of ownership statement (see forms/attachments tab).

The change of ownership/management form should be given to all the tenants occupying your rental property before a change of ownership and/or management occurs. Check yes or no. tceq 20405 (apdg 5857v12, revised 11/19) change of name/ownership this form is for use by facilities subject to air quality permit. Releasor and acceptor each have 5 days to complete the online form. ■■ transfer ownership due to a business acquisition (and subsequent change of abn or trading name), or;